Добро пожаловать на http://vipplan.ru

Випплан Смоленск - это тысячи проектов домов в нашем каталоге!

Вы всегда сможете найти для себя проект дома вашей мечты! Даже если этого не случилось, мы готовы в любую минуту предложить проект индивидуального дома.

Забыли пароль?
Вы еще не регистрировались?

Перейдите по ссылке ниже на страницу регистрации.

Регистрация...

Внимание!!!

В проектную документацию могут быть внесены изменения любой сложности, в соответствии в Вашими пожеланиями!

Полезные статьи

Приобретение земельного участка в собственность

Вы собираетесь приобрести участок. Прежде чем принять окончательное решение, тщательно изучите местность, на которой находится ваш участок, внимательно осмотрите местность. Узнайте о близости реки или других водоемах, всмотритесь в рельеф. Каждый из факторов может иметь неоспоримые плюсы, а также минусы, способные повлиять на окончательное решение. Стоит принять во внимание, что земельные участки, которые продаются «напрямую», дешевле тех, которые реализуют, пользуясь услугами посредников....

Монолитный коттедж с несъемной опалубкой

Перед тем, как вы задумаетесь о строительстве своего коттеджа, необходимо выбрать, сами вы будете руководить строительством, нанимать разных рабочих, или будете обращаться в строительную фирму, и заключать с ними договор. Но даже к этому вопросу нужно подходить правильно, обдумав все плюсы и минусы выбора....

Проекты домов и коттеджей > Каталог проектов домов > Одноэтажный дом с мансардой, просторной гостиной и четырьмя спальнями Vg3964

Одноэтажный дом с мансардой, просторной гостиной и четырьмя спальнями Vg3964

Одноэтажный дом с мансардой, просторной гостиной и четырьмя спальнями
Зарегистрируйтесь

Проект № Vg3964


Техническое описание
Общая площадь: 187.48 м2
Жилая площадь: 94.13 м2
Высота здания: 9.66 м
Размеры дома: 16.18м×17.39м
Кол-во комнат: 6
Цокольный этаж: нет
Гараж: нет
Мансарда: есть

Kонструкция
Фундамент: монолитная плита
Перекрытия: деревянные балки

Цена проекта: АР+КР - 60 000
Одноэтажный дом с мансардой, просторной гостиной и четырьмя спальнями с размерами здания 16,18 х 17,39 м. Фундамент - монолитная ж/б плита под всей площадью дома (мелкозаглубленная). Наружные стены –газобетонные блоки с вентилируемым воздушным зазором и отделкой сайдингом Внутренние стены – газобетонные блоки. Перегородки 1 этажа - газобетонные блоки, мансарды - каркасные с ГКЛ на металлическом каркасе. Пол 1 этажа – по плите. Межэтажное перекрытие - деревянные балки с теплошумоизоляцией в межбалочном пространстве. Крыша многоскатная. Кровля – металлочерепица. Окна — металлопластиковые.
Генплан застройки участка / Паспорт проекта 7000 руб / 10000 руб
Инженерный раздел (полный) 93500 руб
Смета на строительство 46750 руб
Теплотехнический расчет материалов стен Бесплатно
Стоимость проекта со незначительнми изменениями 47800 руб
Стоимость проекта со средними изменениями* 84400 руб
Стоимость проекта со значительными изменениями** 88100 руб

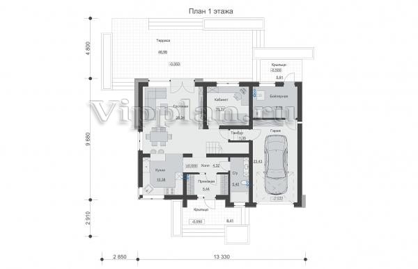
План первого этажа


Прихожая - 5,45 м2
С/у - 5,40 м2
Кухня - 10,38 м2
Гараж - 23,43 м2
Бойлерная - 8,88 м2
Гостиная - 15,43 м2
Кабинет - 10,39 м2
Тамбур - 1,35 м2
Холл - 4,32 м2

План мансардного этажа


Холл - 0,94 м2
Холл - 6,38 м2
Спальня - 17,50 м2 (20,77 м2)
Спальня - 12,92 м2 (14,00 м2)
Спальня - 12,97 м2 (13,98 м2)
Спальня - 12,01 м2
С/у - 4,83 м2 (5,36 м2)
Гардероб- 5,12 м2 (5,69 м2)
Ванная - 10,39 м2
Постирочная - 2,70 м2 (3,12 м2)
Гардероб- 3,78 м2 (4,79 м2)
Одноэтажный дом с мансардой, просторной гостиной и четырьмя спальнями Одноэтажный дом с мансардой, просторной гостиной и четырьмя спальнями Одноэтажный дом с мансардой, просторной гостиной и четырьмя спальнями Одноэтажный дом с мансардой, просторной гостиной и четырьмя спальнями
Внесение изменений и привязка к участку строительства

В любой из проектов от компании VIPplan - Смоленск по вашему желанию могут быть внесены изменения в материалы стен, материалы наружной отделки дома, а также будет произведена адаптация проекта под конкретный регион строительства (с учетом грунтов региона, геологических особенностей вашего участка и местных климатических условий) - БЕСПЛАТНО !!! (кроме проектов со скидкой и проектов наших партнеров).

Любой из проектов, размещенных на сайте smolensk.vipplan.ru мы можем выполнить из требуемых вам строительных материалов: ячеистый бетон (газобетон, пеноблок), керамоблок, кирпич, шлакоблок, бетонный блок, дерево (брус, клееный брус), каркасная технология (деревянный каркас, металлокаркас (ЛСТК)).

Фасад дома и его наружную отделку так же возможно выполнить с применением различных облицовочных материалов: структурной штукатурки, (с утеплителем и без), сайдингом (пластиковый или металлосайдинг), фиброплитами, кирпича.

 
6 Избранные
проекты

Доставка проектов по России: Москва (Московская область), Санкт-Петербург (Ленинградская область), Краснодар, Ростов-на-Дону, Ставрополь, Сочи, Волгоград, Новосибирск, Белгород, Брянск, Воронеж, Саратов, Хабаровск, Астрахань, Нальчик, Владикавказ, Екатеринбург, Тюмень, Самара, Нижний Новгород, Казань, Пермь, Уфа, Челябинск, Красноярск, Ханты-Мансийск, Иркутск, Курган, Оренбург, Омск, Томск, Барнаул, Новокузнецк, Кемерово, Абакан, Чита, Якутск, Южно-Сахалинск, Петропавловск-Камчатский и страны ближнего зарубежья: Белоруссия, Украина, Казахстан